部屋のレイアウトをかえたいと思いつつも、どうしたら良いのかわからない方はたくさんいらっしゃるのではないのでしょうか。
いざかえようと思っても何かと面倒なことが多く、結局は元のレイアウトのまま、という方も多いかと思います。
しかし、そんな面倒な悩みを一気に解決してくれる部屋があります。手軽かつ気軽に、壁を自由に動かすことによって、自由自在に部屋のレイアウトを行える部屋です。
それがbarcode roomです。
barcode roomは具体的には、12種類の壁をつかい部屋のレイアウトを変更することになります。
※画像をクリックすると大きくなりますので、大きな画像でご覧頂きたい方は是非画像をクリックし大きな画像でお楽しみください。
【barcode roomで使用する12種類の壁】
1.fold table
2.thin table
3.sofa/bed
4.hole chair
5.box chair
6.flip chair
7.closet
8.thin closet
9.grid shelf
10.hole shelf
11.thin shelf
12.path
以上12種類の壁を使用することにより、部屋のレイアウトを自由自在に変更できます。もっと気軽に、ダイナミックに模様替えを・・・という考えのもとbarcode roomは生まれました。
詳しいことは後述しますが、壁を動かして部屋のレイアウトを自由自在に変更することになるので、例えば、上の図のようにひとつの空間の中に、いくつもの用途の部屋をつくり出すことも可能です。
しかも、用途に合わせて、壁をかえることで、ひとつの部屋で幾通りもの変化を楽しむことができます。
組み合わせ次第で、ひとつの空間自体の大きさも変更できるので、barcode roomは汎用性の高い設計となっております。
レールさえ天井に設置できれば、構造に関係なく既存のワンルームに設置可能ということですから夢が広がりますね。
それではbarcode roomの12種類の壁を実際に利用するとどのような部屋が出来上がるのか。その一部を見てみましょう。
Contents
12種類の壁を使用して間取りを作成した部屋のレイアウト例
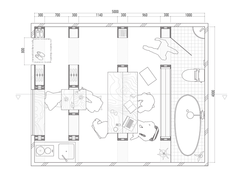
1.lunch gathering
ひとつの部屋を大きく取り、ランチを楽しむ為の開放的なレイアウトとなっています。
2.double bed bedroom
左側に書斎、中央には大きなダブルベッドを用意し、右側にはバスルームというレイアウトの部屋になっています。
3.small meetings
中央の部屋を二つに分け、間にテーブルを挟むことにより、人が集まって話しやすいレイアウトとなっています。
4.movie night party
映画を楽しむ為に中央の部屋を広くとりシアタールームにしました。画像左側の白い壁掛けに映像が映し出されます。
5.cooking party
パーティーを楽しむ為に左側の調理場に少し余裕を持たせています。調理場と実際に楽しむ空間を分けつつ、調理場にいる人も、わいわいと話が弾むように工夫されたレイアウトです。
6.bachelor pad
独身男性が楽しむための要素が詰まった部屋です。左側の壁が書斎、中央を広くとり、右側の壁がソファーとなっています。
barcode roomはレイアウトの仕方次第で、様々な用途で利用することが可能です。
壁の隙間の部分に、画像のようにモノを置くことで、部屋自体の印象ががらりと変わっていることがみてとれます。
この部屋のレイアウトも素晴らしいですね。中央のミーティングスペースにパソコンが設置されています。奥の壁の断面が本棚として利用しているのもいいですね。開放的な空間です。
12種類の壁を組み合わせてつくるbarcode roomは使う人の創造力次第で、様々な部屋に変形しそうです。
先生が生徒に勉強を教えているのでしょうか。ひとつ壁を挟むことにより、いい具合に相手との距離感を保つことが出来ます。
壁自体も、ところどころに穴があいているので、圧迫感を感じさせませんね。
木目がきらりと輝いています。新しい空間の使い方の提案となることが期待される素晴らしい出来映えですね。
どうやらこちらの机は折りたたみ式のようですね。必要なときは出し、必要でないときはしまうことによって空間自体に広がりをもたせるという素晴らしい設計だと思います。
こんな素敵な部屋だったら、毎日でも友人を招いて、レイアウトを楽しみながら楽しく会話が出来ますね。
実はこの作品、株式会社エイブルの主催するコンペティションでグランプリを受賞した作品になります。テーマは「集まれる部屋」。その名の通り、暖かさ溢れる集まれる部屋となっていると思いませんか。
この部屋を設計したstudio_01はまだ設立間もない設計事務所のようですがこれからの活躍に期待が持てる作品です。
studio_01の浜田晶則 (Akinori_Hamada)さんと、アレックス ニゾ(Alex_Knezo)さんの今後の活躍に期待大ですね。
参考:
▼blog_studio_01: exhibition_02 — barcode room
URL:http://blog.studiozeroichi.com/2012/11/exhibition02-barcode-room.html
建築士の浜田 晶則さんは2014年に浜田晶則建築設計事務所を設立しています。
浜田晶則建築設計事務所については下記にリンク先から公式ページに遷移していただけます。
>>>AHA | Aki Hamada Architects
▼ONE PROJECT編集部 オススメ記事:
・世界中の住宅建築を知り尽くした住宅建築のプロによる、世界に一つだけのこだわりの家のつくりかたを探している方はこちらの記事を合わせてお読みください。
>>>理想の家づくりに向けて
・世界中の住宅建築のデザインをお探しの方は合わせてこちらをお読みください。
>>>世界の住宅建築















