日本人の住宅事情は広い土地に住む海外の住宅からからみれば、うさぎ小屋といわれて久しいですが、その中でも人口が密集している東京は特にそれが顕著にみられます。
住居と住居の間にあいた、少しの隙間にも、住宅をつくるという発想は日本が世界に誇る建築技術のひとつなのではないかと個人的には思っています。
今回は、日本の建築事務所ondesignが手がけた「大きなすきまのある生活」という9坪の敷地にある3階建ての建築物をご紹介します。
Contents
わずか9坪の土地に建てられた3階建ての狭小住宅の概要

実はこの建築物は左右2つの棟からなりたっています。こちら側が入り口を正面にして左側にある、主に階段をメインとした棟です。

わずか9坪の土地に建てられた狭小住宅の配置図と断面図
次に入り口を正面にして右側にある、主に実際に部屋として使用する棟です。わずか9坪の土地にどのように配置しているのかがわかる配置図や平面図、断面図の模型ですが、この模型をみるだけでもどんな住宅なのかワクワクしますね。
9坪の土地に建てられた狭小住宅の配置図
※以下の写真からは、クリックすると大きくなります。必要に応じて、大きくしてご覧下さい。

こちらが実際に狭小住宅が建てられる土地の周辺地図です。真ん中にそびえ立っている灰色の建物が今回紹介する狭小住宅です。 周りの家屋と比べても狭小ということが確認できるかと思います。
9坪の土地に建てられた狭小住宅の平面図

1階の設計図(平面図)です。設計図(平面図)の上側の棟が階段をメインにした棟です。設計図(平面図)の下に位置する棟が実際に人が生活する居住空間です。
floor plan / level 0
1. dining room
2. entrance
3. warehouse/ storage

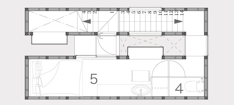
2Fの設計図です。この階には寝室とお手洗いが確認できます。
floor plan / level 1
4. bathroom
5. bedroom

3Fの設計図です。リビングと書斎、それにお風呂がこの階にあります。
floor plan / level 2
6. living room
7. workspace
8. bathroom
9坪の土地に建てられた狭小住宅の断面図

階段側の棟の断面図です。

住居側の棟の断面図です。

こちらの設計図は、ちょうど2棟をつなげる空間の図です。いろいろと工夫を施しているのがわかり、面白いです。画像をクリックすると画像が大きくなり、細かい文字もご覧頂けますので、是非ご覧頂ければと思います。
9坪の土地に建てられた狭小住宅の実際の写真

「大きなすきまのある生活」の完成図です。如何に狭い空間に建てられているのかがよくわかります。
非常に狭い土地に建てられているため、建物に様々な工夫が施されているのがわかります。

2棟をつなげる隙間はやっとの思いで、ひとがひとり通れるくらいの大きさでしょうか。写真だけでもその狭小さが伝わってきます。

この狭い隙間を有効に利用した住居が「大きなすきまのある生活」です。

階段も狭いですが、窓が多いため、部屋の中は比較的明るくなっています。こうしてみると随分と遊び心の溢れる建築物ですね。

左側が階段のある棟の写真です。右の写真は3Fのリビングの自然光をとりいれる窓です。

1Fのダイニングルームの写真です。

左が1Fのキッチン。右側が3Fのバスルームです。

3Fの書斎スペースです。

こちらが「大きなすきまのある生活」の2Fにある寝室の写真です。レンガ色の室内と木のぬくもりが非常にマッチしていますね。
- 所在地 東京都文京区根津
竣工年月 2012.09
設計 西田司+萬玉直子
撮影 山本育憲
敷地面積 30.07㎡
建築面積 18.03㎡
延床面積 50.70㎡
施工業者 有限会社:伸栄
構造 田畠隆志/ASD
ONE PROJECT編集部 オススメ記事:
・世界中の住宅建築を知り尽くした住宅建築のプロによる、世界に一つだけのこだわりの家のつくりかたを探している方はこちらの記事を合わせてお読みください:理想の家づくりに向けて
・世界中の住宅建築のデザインをお探しの方は合わせてこちらをお読みください:世界の住宅建築
参考:
大きなすきまのある生活 | ondesign
[大きなすきまのある生活] – オンデザイン@いまどきの仕事ウサギ小屋(うさぎごや) – 語源由来辞典
狭小住宅関連記事:
世界一の狭小住宅。狭い路地につくった狭小住宅の横幅はなんと122センチメートル!
▼ONE PROJECT編集部 オススメ記事:
・世界中の住宅建築を知り尽くした住宅建築のプロによる、世界に一つだけのこだわりの家のつくりかたを探している方はこちらの記事を合わせてお読みください:理想の家づくりに向けて
・世界中の住宅建築のデザインをお探しの方は合わせてこちらをお読みください:世界の住宅建築