今回紹介するデザイン・デザイナーズ住宅はスイスのチューリッヒにあるflexhouseと名付けられた住宅です。
flexhouseは、チューリッヒ湖の畔にある空き地を利用し、他には見られない白いリボンのテープをふわっと地面に着地させた時のような独特な形状のファサードが非常に印象的な外観の住宅です。また特に南側にガラス窓を多用することで存分に採光を取り入れている住宅設計デザインが際立っています。
今回紹介する住宅は、白を基調としたモダンな外観と、非常に明るい室内が特徴的な建物ですが、なんといってもこの悪条件の土地を使った住宅設計とそれを活かすシームレスな空間設計が一番の見所です。
上のマップでは分かりづらいですが、実はこの建物の北側には列車が走っています。加えて正面にはゲネラール=ヴィレ通りがあり、建物を建てるのに様々な制約があるためお世辞にも土地の条件がいいとは言えません。
まずはその独特な立地条件のため、縦に短く横に長い建物にしなくてはなりません。
Googleマップで言うとちょうど上の地図のマークの場所にflexhouseは建てられました。この記事を書いている今現在(2016年6月1日)は、Googleマップにflexhouseの面影はなく、木が生い茂ったちょっとした林になっています。Googleストリートビューにすることでようやく建設中のflexhouseを見ることが出来ます。
悪い立地条件をカバーするための間取りと立地条件を活かす特徴的な外観
地図を見ても分かる通り、チューリッヒ湖の畔にある村の端の空き地に建てられた住宅です。住宅を建築予定の木が生い茂る林の部分は小高い丘のようになっており、この条件を利用し4階建ての住宅にすることで不利な立地をカバーしています。
また住宅を建てるのには、不利な土地でありながらも地階を含め4階建ての住宅にすることで、どの階にいてもチューッリッヒ湖を見渡せる間取り設計となっています。
住宅設計を担当したstefan camenzind氏は住宅設計において、外と中とのつながりを非常に大切にしている建築家で、室内と外との境界線をなくし室内が広くみえ、どの部屋にいても外からの光をとりいれることができるように工夫されています。
Googleマップを見るだけでも、家を建てる場所としてはなかなか選びづらい場所であることは誰の目から見ても明らかですが、この狭い土地と地形を巧みに利用して建てられたのが今回紹介するflexhouseといえるでしょう。
flexhouseはevolution designによる住宅設計デザインなのですが、なんでもこの土地をみた瞬間に、着想を得たのだとか。
悪い立地条件を活かす間取りのデザイン住宅
まずは一階部分の間取りです。住宅の地階部分にはエントランスとガレージがあります。ガレージからも入室できるようになっており、ゲストの為のトイレも設置してあります。
中央部分の螺旋階段は、一階リビングとダイニングキッチンに繋がっています。
リビングルームとダイニングキッチンを間仕切りなどの壁により区切ることなく、緩やかに繋げることで、部屋を仕切るよりも開放的で広がりを持たせる空間設計となっています。
1階の、リビングの風景ですが、ガラスを多用することによりふんだんに採光を取り入れルコとに成功しており、また壁を緩やかにカーブさせることにより柔らかい曲線美を描いています。
夜は間接照明により暖かい空間に。
また1階リビングルームは一部が吹き抜けになっており、2階とも緩やかに繋がっています。1階にいながらもガラスの壁を挟んで、2階のベッドルームを見渡すことが出来るように工夫されています。
夜になるとまた印象を大きく変えます。
1階のリビングからもチューリッヒ湖を見渡すことが出来ます。
ダイニングからはキッチンと、吹き抜けを通して2階のゲストベッドルームを見ることが出来ます。
全体的に暖かみのある優しい空間設計が非常に印象的なつくり。
住宅1階の1部を吹き抜けにしたことにより、1階のリビングとダイニングキッチンへ外から優しい採光を取り入れることができ、また全体的に明るい室内に。
地階から螺旋階段を昇ってくるとはじめに目にうつるのは広いリビングとチューリッヒ湖。
キッチンからももちろん、チューリッヒ湖をのぞむことができます。最高の気分で料理をすることが出来そうですね。
L字型のキッチンの一部の脚は抜けており、より空間を広く見せることに成功しています。
螺旋階段の奥から照らす間接照明も実に見事。
2階の間取りです。階段横の広いウォークインクローゼットに、マスターベッドルームとゲストベッドルーム。吹き抜け部分のオープンスペースに、バスルーム。
1階がゲストをもてなし、団らんする為のスペースだとしたら、2階部分は疲れを癒す為の空間に設計されていることが分かります。
1階と2階は一部を吹き抜けにすることにより、緩やかに繋がっています。そのため2階からも1階のリビングルームを見渡すことが出来るように設計されています。
こちらはマスターベッドルーム。もちろんここからもチューリッヒ湖を見渡すことが出来ます。また2階部分は3方向の壁がガラスとなっている為、1階よりもさらに採光を取り入れることができるように工夫されていることが分かります。
こちらはマスターベッドルーム横のバスルーム。非常に開放的なバスルームとなっています。
こちらは2階のゲストルーム。普段は休憩スペースとして使用できそうです。左奥の扉はバスルームに繋がっています。
ゲストベッドルームから見たチューッリッヒ湖。素晴らしい景色。
続いてこちらは3階の間取りです。3階は2つのテラスとパノラマビューのスタジオとなっているよう。サステナビリティをテーマにつくられたためシームレスな空間に仕上がっています。
3階部分は1階と2階とは直接的なつながりを持たせていません。しかし、3階部分はその階層自体がシームレスで、それぞれの空間と繋がりを持たせています。
夜になるとまた表情がガラッと変わります。
テラスからの風景です。夏は涼しく、冬は暖かくなるように設計されているそうです。
夜のテラスからのぞむチューリッヒ湖は最高です。
素晴らしいのひと言。
こちらは建物の外観です。
夜です。
みたことのない形をしていることがよくわかりますね。
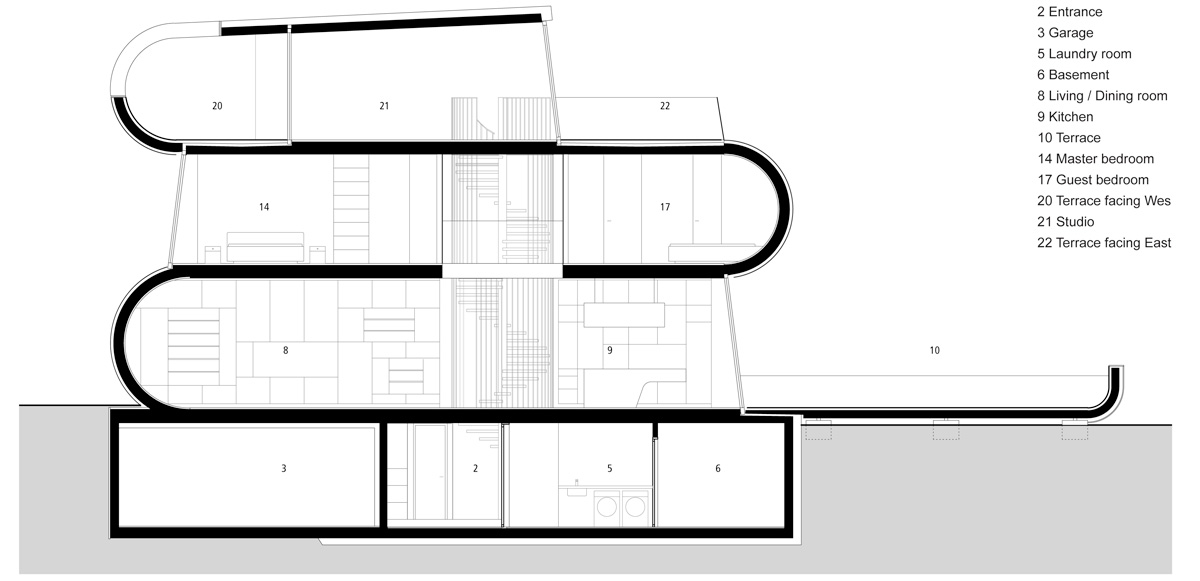
こちらは断面図。
flexhouseの間取りのまとめ
flexhouseは外観はもちろん、立地条件を利用し、あらゆる部分において工夫が施されている建物だと思います。
印象的な外観に目がいってしまいがちですが、実は内部空間をより良い環境にする為の建物の形だということがよくわかります。
悪条件な立地でも工夫次第で素敵な住宅にすることができる良い例だと思います。また空間全体に気を配り、そこに住まうひとに緩やかなつながりを持たせる工夫があらゆるところに施されている点においても非常に好印象をもちました。
注文住宅で家づくりを考えている方は参考に出来る点が多々あるかと思いますので今回のデザイナーズ住宅を是非参考にされてみては如何でしょうか。
ONE PROJECT編集部 オススメ記事:
・世界中の住宅建築を知り尽くした住宅建築のプロによる、世界に一つだけのこだわりの家のつくりかたを探している方はこちらの記事を合わせてお読みください:理想の家づくりに向けて
・世界中の住宅建築のデザインをお探しの方は合わせてこちらをお読みください:世界の住宅建築
・注文住宅の家を安く建てるための基本はこちら>>>:家を安く建てる方法とコストダウンの7つの基本
・注文住宅を予算内でおさめるための基本はこちら>>>:家づくりで覚えておきたい家の形とお金のかかる家とかからない家の違い
・注文住宅の無料でもらえる住宅カタログを活用する方法はこちら>>>無料で貰える住宅カタログを使いこなし賢く家を建てる6つのステップ










