タカトタマガミデザイン(takato tamagami architectural design)によってデザインされた東京の北青山にある歯科技工所ippin DENTAL LABORATORY。
清楚な純白の室内に、まるで風が舞うかのようなデザインの緩やかな壁。元々小売店の為に設計された建物言うこともあり、ふんだんに使用されたガラスの窓からは外からの自然光がたっぷりと室内に注ぎ込まれます。

外からでは中々わかりづらいですが中に入ると・・・

こんな光景が広がります。

緩やかなに弧を描いたパーテーションが非常に目をひく施設となっています。

それでいて緩やかなつながりをもっており、何だか不思議。

この緩やかに曲がった壁はハンドクラフトでつくり出されたのだそう。

表参道にあるだけあり、とってもファッショナブルでオシャレ。

室内にいながらも風がなびいてきそうな空間に仕上がっています。

自然光もふんだんに取り込まれ、また室内の白色を基調とした壁に反射しとっても明るく染め上げます。

夜の様子も素晴らしいですね。

とっても幻想的な室内に仕上がっています。



Macがおいてあります。
こういったファッショナブルな空間には銀色ボディーのMacがとっても似合いますね。

ハンドクラフトの壁をアップしてみるとこんな感じ。



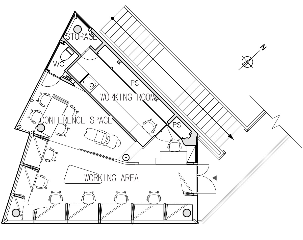
非常に巧みにデザイン設計されていることがよくわかります。ワーキングスペース、そして会議室までこの室内に詰め込まれています。


緩やかになびく壁の正体はこう言ったことを意味していたんですね。ほどよく室内に光を取り入れ、過剰な光は反射して外に返す。
素晴らしいデザインです。
ONE PROJECT編集部 オススメ記事:
・世界中の住宅建築を知り尽くした住宅建築のプロによる、世界に一つだけのこだわりの家のつくりかたを探している方はこちらの記事を合わせてお読みください。
>>>理想の家づくりに向けて
・世界中の住宅建築のデザインをお探しの方は合わせてこちらをお読みください。
>>>世界の住宅建築
▼参考:(外部サイト)
takato tamagami creates customized dental lab in tokyo