2011年3月11日といったら日本人なら忘れることの出来ない日。
その日に起こった大災害の援助の為に吉村靖孝建築設計事務所が考えだしたのは今回紹介する輸送用貨物コンテナを使用してつくられた低コストでつくることの出来るコンテナハウス。
このプロジェクトは「ex container(エクスコンテナ)」と呼ばれ低コストかつ高品質な住まいを提案しました。
残念ながら公的な応急仮設住宅としての採用には至りませんでしたが、寄付により製作したプロトタイプを宮城県石巻市のボランティア支援団体に寄贈されたようです。
コンテナハウス「ex container(エクスコンテナ)」は2つの貨物輸送用のコンテナを組み合わせることで60㎡の広い部屋をつくることを実現したものとなっています。
「ex container(エクスコンテナ)」の特徴
上の写真が吉村靖孝建築設計事務所によって設計されたコンテナハウスのデザイン。一見するに普通のコンテナハウスのようにも見えます。
しかしながらこのコンテナハウス「ex container(エクスコンテナ)」の中には、キッチン、リビングルーム、バスルーム、寝室など生活に必要な機能が詰め込まれており、生活するには十分な空間となっています。
こちらが斜めから見たときのコンテナハウス「ex container(エクスコンテナ)」。ちらりと中をのぞき見ることが出来ます。
こちらがまっぷたつの状態の時のもの。この二つが合体することでコンテナハウス「ex container(エクスコンテナ)」は出来上がります。
クレーン車で持ち上げられ設置します。
「ex container(エクスコンテナ)」の内観
そして完成した空間が上の写真。天井には天窓もあり、窓も要所要所にしっかりと備え付けられているため、コンテナハウス特有の圧迫感を感じることなく過ごすことが出来ます。
外からの光が入ること、さらに、木のぬくもりを存分に感じることの出来る空間となっている為、快適に過ごすことが出来そうです。
コンテナハウスというと、冷たい空間を創造してしまいがちですが建築家吉村靖孝氏がデザインした「ex container(エクスコンテナ)」では、コンテナハウスとはおもえないほど、とても暖かな空間を提供してくれます。
こちらがキッチン。簡易キッチンではありますが、コンテナハウスとは思えない程立派なキッチンです。
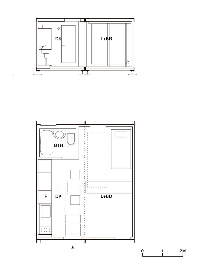
「ex container(エクスコンテナ)」の断面図と平面図
図面です。左上奥の空間はバスルームとなっているようです。右上の空間は寝室ですね。左側の空間はダイニングキッチンとなっています。
そして右下がリビングとしての使用を想定してつくられたことがわかります。
ちなみにこの「ex container(エクスコンテナ)」の価格は60,000 USDとのこと。
世界には本当にいろいろなコンテナハウスがありますが、低コストで実現できる夢の住まいであるコンテナハウスは、もしかしたら今後主流になってくるのかもしれません。
建築家:YASUTAKA YOSHIMURA ARCHITECTS(http://www.yasutakayoshimura.com)
ONE PROJECT編集部 オススメ記事:
・世界中の住宅建築を知り尽くした住宅建築のプロによる、世界に一つだけのこだわりの家のつくりかたを探している方はこちらの記事を合わせてお読みください。
>>>理想の家づくりに向けて
・世界中の住宅建築のデザインをお探しの方は合わせてこちらをお読みください。
>>>世界の住宅建築
▼参考:(外部サイト)
yasutaka yoshimura architects: ex container project, anywhere, japan
YASUTAKA YOSHIMURA ARCHITECTS » Ex-container(http://wp.ysmr.com/?p=983)















