世界は広いですね。
なんとホームレスのための家賃がかからないタイプのおしゃれなお家があるとのこと。しかもこのお家、見た目も非常に面白いのですが、それ以上にその中の機能が先進的かつ、とっても素晴らしいのです。
こんなお家があったら、一生ホームレスでいてもいいかな・・・なんて考える人が出てきそうなほどオシャレに仕上がっています。
上の写真が今回紹介する家。Gregory Projectの一環としてつくられたこの建物。屋外の壁に看板があり、看板それ自体がそのまま家になっているという、なんというか逆転の発想の家。
住まいながら、看板掲出費用を捻出できるということなのでしょうか。
こちらは昼間の風景。
見た目は看板なのですが、これは列記とした家。中はどうなっているのかというと・・・。
ものすごくおしゃれ。
一番右端の写真が内部へと続く階段。左の二つの写真は建物内部を現しています。
贅沢すぎるほどの設備が備え付けられていることがわかります。
こちらはバスルーム。ガラス張りのバスルームなんて一般家庭でもなかなか難しそうな設備が備え付けられていることがはっきりと見てとれます。
ホームレスならずとも一度は住んでみたいと思わせてくれる家になっています。
この角度からみれば普通の看板。おそらく普通に車道を運転していればこれが家だなんて気づくことは無いのではないでしょうか。
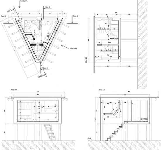
間取りです。
ホームレスにも社会復帰のために快適な居住空間を・・・という試みは素晴らしいかもしれませんが、ここまで綺麗なつくりだと、社会復帰するのが逆に難しくなってしまいそうな気がします。
ONE PROJECT編集部 オススメ記事:
・世界中の住宅建築を知り尽くした住宅建築のプロによる、世界に一つだけのこだわりの家のつくりかたを探している方はこちらの記事を合わせてお読みください。
>>>理想の家づくりに向けて
・世界中の住宅建築のデザインをお探しの方は合わせてこちらをお読みください。
>>>世界の住宅建築
▼参考:
Home
Billboard Houses For Homeless – Fubiz Media(http://www.fubiz.net/2014/07/01/billboard-houses-for-homeless/)















