コンテナハウスときくと野暮ったい家を想像する人が多いかもしれません。
しかし、もしそのコンテナハウスにステンレス製のキッチンや二段式のベッドルームがついており、それだけでなくダブルベッドや、各種棚、またバスルームがついているとしたらどう思うでしょうか。
今回はそんな今までのコンテナハウスの野暮ったいイメージを覆してしまう洗練されたコンテナハウスを紹介します。
Contents
どこへでも移動可能なコンテナハウス「port-a-bach」

このコンテナハウスの名前は「port-a-bach」。実際に輸送用として利用されていたコンテナを使用しています。
このコンテナハウスの試作品は中国の杭州市でつくられ、ニュージーランドに運ばれ、設置されました。
移動可能なコンテナハウスを開くと人が暮らせるスペースが

今まさにコンテナハウスを開き、設置している瞬間です。ひとつのコンテナハウスで、大人2名と子供1人分が暮らせるほどのスペースがあるそうです。

またコンテナを開くことにより、開閉されたスペースをテラスとして利用することができます。結構なスペースがあるのでテラス席を使ってオープンエアーでバーベキューなんてこともできそうです。
正面はほぼすべてガラス張り。一般的に圧迫感があると思われるコンテナの中は透明なガラスを埋め込むことによって、開放的な広さを感じることができるようになっているようです。

コンテナハウスの利点として、輸送用コンテナを利用しているので、どこでも好きな場所に設置することできます。
またコンテナの中に生活に必要なキッチンや、バスルーム、またベッドルームなどが予め含まれているため、特別場所を選ぶ必要もありません。
文字通り好きなところで生活ができるようになります。

両端にカバーをつければプライバシーも守ることが出来ます。これにより周囲からの目を気にせずコンテナハウスで生活することができそうです。
移動式の別荘として利用するのも良いかもしれませんね。

長方形の形をしたコンテナの左側入り口部分には2段ベッドが隠されています。もちろん2段ベッドの部分は必要であれば、カバーで覆うことも出来るので昼は開放的に過ごし、夜はプライバシーを守りながら就寝・・・ということも可能です。

2段ベッドの部分を拡大するとこんな感じになっています。女性が気持ち良さそうに本を読んでいますね。

ちょっと角度を変えてコンテナハウスをパシャリ。
ふかふかのベッドで気持ち良さそうに寝ながら本を読んでいます。

外のガラス窓からみるとこんな感じに。この写真の右側にあるのがキッチンスペースになります。つまり、2段ベッドのすぐ隣にキッチンスペースがあるという間取りになります。
コンテナハウス「port-a-bach」の内観

2段ベッドを背にしてコンテナハウスport-a-bachをみるとこんな感じに。左側にはキッチンがあり、奥にはバスルーム、そして右側には棚が設置されていますね。
また全体的に木材を使用しているので、コンテナハウスの無骨なイメージとはほど遠く、洗練された暖かい空間が広がっています。

正面に戻り、今度はひとつずつ居住空間を紹介しましょう。まずは正面右側のバスルームです。

こちらはシャワールームです。オープンエアーでとても気持ちよく利用することが出来そうですね。
トイレはコンポストトイレ(バイオトイレ)を利用するようで、環境にも非常に優しい設計となっています。

次に正面のドアからシャワールームをみてみました。棚も設置してあるので洋服などを棚においてシャワーを浴びることもできるようです。

中央のドアのリビングにはダブルベッドを設置することも出来るようです。狭いコンテナハウスと言えど、その使い方によって狭いスペースをうまく活用し、無限大に可能性を広げることができそうです。

シャワールームからキッチンをみるとこんな感じに。右側はキッチンの後ろにある食器棚スペースです。
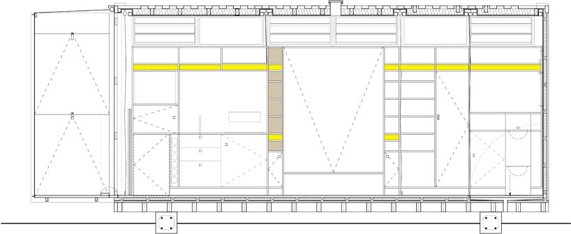
コンテナハウスの平面見取り図と断面図

こちらはコンテナハウス「port-a-bach」の見取り図です。かなり広いつくりとなっています。

こちらは断面図。キッチンが左側に来ています。

最後に夜のコンテナハウスです。暖かいオレンジ色の照明ががコンテナハウス全体を明るく染上げています。
一般的に野暮ったいイメージのコンテナハウスも、設計次第でここまで豊かな居住空間をつくり出すことができるものなのですね。
デザイン設計:Bonnifait + Giesen | BONNIFAIT + GIESEN(http://www.atelierworkshop.com)
ONE PROJECT編集部 オススメ記事:
・世界中の住宅建築を知り尽くした住宅建築のプロによる、世界に一つだけのこだわりの家のつくりかたを探している方はこちらの記事を合わせてお読みください。
>>>理想の家づくりに向けて
・世界中の住宅建築のデザインをお探しの方は合わせてこちらをお読みください。
>>>世界の住宅建築
▼参考:
port-a-bach shipping container retreat by atelierworkshop
Compact and Sustainable Port-A-Bach Shipping Container Holiday Home