北海道の大樹町の大草原の中に「Même」という名前の実験施設が設立されました。
一年に一棟ずつコンペ形式で選ばれたデザインが建設される予定だそうで、今後の広がりにきたいが持てる建築施設となっています。
その場限りの施設ではなく、将来的にはサステナブルな住宅ヴィレッジとして稼働し、研究・教育・研修施設も併設され学生や研究者が集い、自然の環境に身を沈めながら学ぶ場として機能する予定だそうです。
「Même」の場所はどこ?
北海道の大自然の中に位置しています。広大なる土地に建てられる為、これから「ひとつの村」としてどんな広がりをみせるのか、非常に期待が持てる建設施設となっています。
「Même」の概要と外観
「Même (メム)」です。「Même (メム)」とはフランス語では「同じ」を意味し、計画地の地名のアイヌ語では、「水の湧き出る場所」を意味するのだそうです。
壮大なる計画の実験施設第一号となる「Même (メム)」は、アイヌの伝統的な住宅形式チセから多くのヒントを得て設計されたようです。
本州の民家は基本的には「木の家」または「土壁の家」で出来ていますが、チセの伝統的な住宅形式は、屋根も壁も萱や笹ですっぽりと覆った「草の家」なのだそうで、そうすることで断熱性を確保している設計なのだそうです。
また、本州の民家では湿気を避けるために床を持ち上げ、その下に換気をとるのが一般的なのに対し、チセの伝統的な住宅形式は床を上げずに大地の上に直接ガマのゴザを敷き、中心に炉を切り、年間を通し火を絶やすことがないのだそう。
大地を暖め続けそこからの輻射熱(放射熱と同じ)を享受するのが「大地の家」としてのチセの基本原理だそうです。
計画の第一段階としての施設「Même (メム)」が大草原の中に身を潜めるようにたたずんでいます。
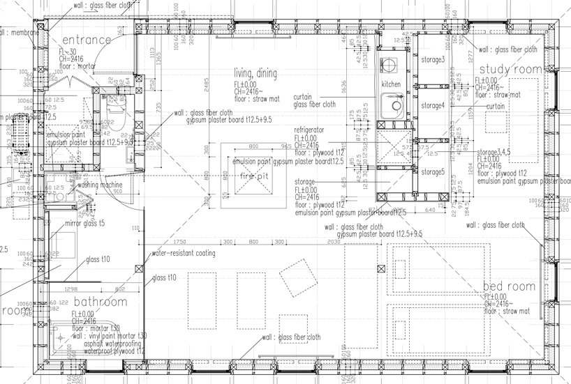
「Même」の平面図
「Même (メム)」の平面見取り図です。画像をクリックすると大きくなりますので詳細について確認されたい方は画像をクリックしてください。
「Même」の内観
こちらが「Même (メム)」内のリビングルームです。内部からだと、屋根も壁もすっぽりと覆われていることがよくわかります。
リビングルームの中心にあるのは、年間を通し火を絶やすことのない「炉」。床にはガマのゴザを使用していることもわかります
リビング全体を見渡すと非常に開放的な空間が広がっています。建物全体の面積79.50 m2の中で最も広い部屋がこのリビングに当たります。
リビングの右側にはバスルームが設置されています。
リビングの中心にある炉の煙突部分は外に繋がっています。骨組みは現地のカラマツ材を使っているのだそうです。
木の骨組みを、ポリエステルフッ素樹脂コーティングの膜材でくるみ、内側を脱着式のガラスクロスの膜材で覆い、さらにその中間に、ペットボトルを再利用した光を透過するポリエステル製の断熱材を挟むという断面構成だそう。
こうすることで、膜の間に空気の対流を作り出し、その流れによって内部環境を快適に保つことができるのだそう。
写真のような木製断熱サッシもついており、様々なサッシを代えながら、家の生活環境をチェックすることができるようになっているとのこと。
インテリアのガラスクロスも全て脱着式となっており、様々な環境実験ができるように設計されているようです。
こちらがベッドルーム。建物全体に覆われている膜が日光を通すことにより、日が昇れば起き、日が沈めば寝るという自然リズムの中で生活することが可能になるの出そう。
日光が部屋中に注ぎ込み、非常に明るい空間をつくり出しています。
「Même」の断面図
「Même (メム)」の断面図です。建物全体が大地に根づいていることがよくわかります。
冬になるともちろん雪が降ります。雪が降ると、その白い建物はより一層自然と同化していることが確認できます。
簡易なつくりでありながら不思議と力強さを感じる建物となっています。
このまわりにこれからどんな建物が建立されるのか楽しみだと思いませんか。
第一号として自然の中にたたずむこの施設「Même (メム)」はまるで来訪者を待ちわびているかのようです。
あかりをつけると建物全体がぼおっと明るくなります。
「Même (メム)」はこれからの動向が非常に気になる施設ですね。「Même (メム)」は隈 研吾建築設計事務所により設計された建築物です。
デザイン設計:Memu Meadows | kengo kuma and associates
ONE PROJECT編集部 オススメ記事:
・世界中の住宅建築を知り尽くした住宅建築のプロによる、世界に一つだけのこだわりの家のつくりかたを探している方はこちらの記事を合わせてお読みください。
>>>理想の家づくりに向けて
・世界中の住宅建築のデザインをお探しの方は合わせてこちらをお読みください。
>>>世界の住宅建築
▼参考:(外部サイト)
Même – Experimental House / Kengo Kuma & Associates | ArchDaily
kengo kuma: meme meadows experimental house















