今回紹介する住宅は熊本県熊本市の中心部に近い住宅地に建てられた「House K(熊本の住宅)」と名付けられた住宅です。
House K(熊本の住宅)は、周辺を山に囲まれた落ち着いた住宅地に若い家族の為に建てられた建物で内部の空間は、自然を身近に感じることが出来るように設計されており、都市の生活の中で失われつつある光や風、雨などを常に感じることの出来るように意図して設計されている住宅です。
光と影、時のうつろいがテーマとして掲げられ、白い箱の中に、光を取り入れる工夫が随所に見られます。隙間から室内に覗き込む光によって室内にいながらも外部空間と一体化しているかのような不思議な感覚を味わうことができ、またテーマの一つである時間の経過を感じられるつくりとなっているのが大きな特徴です。
さらにそれぞれの部屋が独立していながらも有機的に繋がっているかのような緩やかな設計が特に印象深い建物となっています。
このHouse K(熊本の住宅)は、内野吉貴+YDS建築研究所の内野吉貴氏と村木真奈氏によって担当された住宅です。
Contents
House K(熊本の住宅)の外観
House Kは白い箱が重なり合ったかのような外観がとても印象に残る建物となっています。
この建物を設計するにあたってのクライアントの希望は、広いリビング、南向きの子供部屋、大きな本棚だったようで、そこから着想を得て白い立方体を光と風が駆け巡ってゆく建築を考えたのとのこと。
2階の部屋と部屋の間に南向きのバルコニーも設置されているため、日当りも良く、周囲の目を気にすることなくバルコニーを利用できる設計となっています。
House K(熊本の住宅)1Fの間取り
こちらが1階の間取り。車を2台おける駐車場のスペースに、クライアントの希望である広いリビング、それにキッチンと寝室を確認することが出来ます。
House K(熊本の住宅)のリビング・ダイニング・キッチン
左側に見えるのが玄関です。クライアントの希望である大きな本棚が玄関から壁に沿うように設置されています。
リビングの奥にはキッチンがあり、天井のわずかな隙間からのぞく吹き抜けからは採光を取り入れることができます。
キッチンからは1階のリビング全体を見渡すことができます。
建築家によるとこの1階のリビングは「庭に面したオープンな構成とし、吹き抜けと斜めの壁により広がりを感じられる空間とした」そうです。
また壁一面の本棚、それに丸いテーブルは小さなお子様と両親が一緒に本を読んだりすることが出来るように設計に加えられたようです。
無機質な装いを持つ白い壁面と、有機的な風合いの木材、それに外から降り注ぐ自然光が融合することで空間全体に活気を与えている見事な設計となっています。
また玄関、外部の庭には玄昌石などの自然石を用いているとのことで、自然の風合いと時の経過を感じることが出来ます。
リビングからの吹き抜け
House K(熊本の住宅)の最大の特徴は至る所に施されている室内に光を取り入れる工夫。外から室内に差し込む光は時間の経過と共に形を変え隅々まで室内を明るく照らし出します。
一階リビングの吹き抜け部分からは青い空をのぞむこともできます。
時間の経過と共にうつりゆく影の形を、景色さながら楽しむことが出来ます。直接光とテラスから反射された柔らかな光が壁面で相互にあわさり独特な光の模様を紡ぎだしています。
天井の随所に存在する間接照明も空間に見事に調和しています。
キッチン
こちらのキッチンは建物の北側に位置していますが、暗くなりがちなキッチンの奥には外からの光を取り入れる工夫が施されています。
キッチンは広くもなく、また狭くもなくちょうどいい大きさでつくられています。また導線がしっかりと考えられており、極力無駄な動きをせずに料理をつくることができます。
予め建物に設置された収納スペースも多く、より多くの収納が期待できるつくりとなっています。
1Fの部屋(寝室)
こちらは1階の寝室。室内に設置された採光をとる仕掛けが非常にユニーク。屋内にいながらも屋外さながらの、柔らかい自然光のうつろいを感じることが出来るように設計されています。
階段
建築家によると「階段は白いミニマムな空間とし、テラスから差し込んでくる自然光によって、昼は常に明るい空間」としたそうで、白い壁に反射したテラスからの光がこの空間に降り注いでいることがよくわかります。
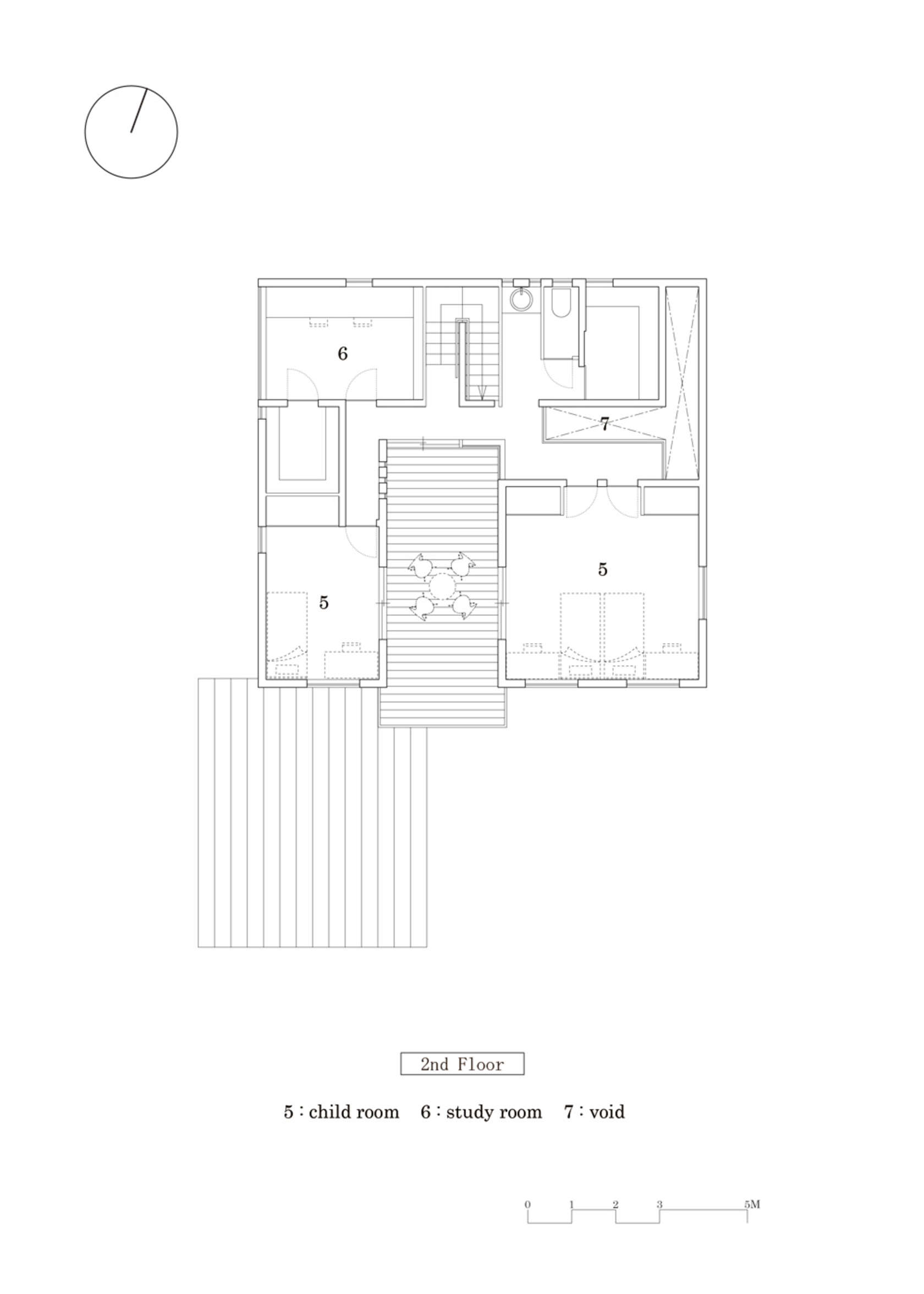
2F間取り
続いてこちらは2階の間取りです。2部屋の子供部屋とその間にはバルコニー、それに加えて1つの勉強部屋があるようです。
2F廊下
2階に上がるとまず目につくのが部屋の間に挟まれたバルコニーから降り注ぐ自然光。壁面で反射して室内にふんだんに注ぎ込みます。
大きな子供部屋の廊下からみた景色です。向こう側の部屋が壁面であるのに対し、大きな子供部屋の方はガラスの壁になっています。
ガラスの壁とすることにより、2階部分から1階のリビングに光を取り入れ、また同時に複雑な影をつくり出すことに成功しています。
反対側から見るとこんな感じです。
2Fの部屋(子供部屋と勉強部屋)
それでは西側にある小さな子供部屋へ。こちらが扉です。子供部屋へと続く廊下の壁面からスリット状の窓が設置してあり、それによりより多くの採光を室内空間に取り入れることが出来るよう工夫されています。
こちらが西側に位置する子供部屋です。ここから直接バルコニーへ出ることも出来ます。開けた扉の奥の方にあるもうひとつの扉が勉強部屋です。
こちらが奥の勉強部屋。ここでも西側からの採光を取り入れることが出来るように壁面に光を取り入れる工夫がされています。
バルコニー
つづいてこちらはバルコニー。それぞれの子供部屋から直接出入りが出来るように工夫されている他、階段を昇った後の廊下から直接バルコニーに出入りすることが出来るように工夫されています。
子供部屋と廊下からバルコニーに出入りができ、子供が大きくなった時のことを考えたつくりとなっています。部屋を通らずに直接バルコニーに出入りすることが出来るため家族内でのプライバシーの確保と言う意味でも優れた建築設計となっています。
またバルコニーに照明を設置していることや、コンセントを設置している点など後のことを考えた汎用性のある設計になっています。
バルコニーでも影が複雑に絡み合っています。
2Fの部屋2(子供部屋)
ちなみにこちらがもうひとつの子供部屋。先ほど紹介した子供部屋よりもより広く間取りがとられています。
扉が二つあるため将来的に空間を半分に仕切るなど拡張性の高いつくりとなっています。
2Fの洗面所
2階の奥にはトイレと洗面所も設置してあります。
2F渡り廊下からの眺め
東側の大きな子供部屋へとつづく渡り廊下です。ここからは直接一階リビングと繋がっています。
外からの複雑な採光を取り入れることに成功しています。
間取りのまとめ
最後に1階と2階の間取りです。2階のバルコニーからは壁面で切り取られた「自分だけの空」を楽しみ1階からは吹き抜け越しの青い空。
光と風が自然と住宅の中に降り注ぎ、生活空間に彩りを与えてくれています。また全体を通して生命力の溢れる空間に仕上がっています。
■建築概要
計画地 :熊本県熊本市
延床面積:160.64㎡
用途 :専用住宅
担当 :内野吉貴、村木真奈
構造設計:株式会社ミュー設計室
施工 :株式会社岩永組
構造 :木造
予算内でいい家を安く建てるために知っておいて欲しいこと
予算内で、いい家を安く建てるために知っておいて欲しいことが、実は、3つあります。
ここでは、いい家を安く建てるために知っておきたい3つの記事をご紹介します。
>>>家づくりで覚えておきたい家の形とお金のかかる家とかからない家の違い
>>>無料で貰える住宅カタログを使いこなし賢く家を建てる6つのステップ















