今回紹介するお部屋は築40年のマンションを1500万円をかけてリノベーションしたAIRHOUSE DESIGN OFFICEの建築家である桐山氏のデザイン。
114平米という広さもさながら、隅々まで随所に渡り、洋服への愛を感じることの出来る一室となっています。
まずはエントランス部分から。「服を収納する」ということから設計し、築40年のRC造のマンションをリノベーションしたのがこちらの作品。お気に入りの服や買ったばかりの服を飾っておくのが好きなクライアントのために設計されたデザインです。
なんでもはじめは大きなクローゼット空間が欲しいという要望だったそうですが、最終的には大きなクローゼット空間を配置することにしたのだそう。
この空間は「ドレスルーム」と呼ばれ、通路であると同時に見せる収納と隠す収納に分かれ、そのときの状況や季節に応じて常に変化する空間となっているのだそう。
生活の中にファッションが入り込み、この空間を通るたびに気分が変わるような場所を目指したということですが、季節ごとに様々な装いをみせてくれそうな空間に仕上がっていると思いませんか。
なんとこんなところにトイレがあります。
こちらはリビングの一角。リビング兼ワークスペースだそうで、正面の鉄の収納によりドレスルームとリビングをゆるやかに間仕切りされています。
そして後ろを振り返るとリビングが。
コンクリートのキッチン、コンクリートの床、スチールの家具、ビンテージの照明、アンティークの家具などでまとめ全面に床暖房を埋設しているのだそう。
こちらはドレスルーム、即ち飾れるクローゼット空間。
季節のものやお気に入りの服はショーケースの中へ収納し、見せたくないものは右手のスチール家具の中に収納します。ショーケースにはガラスの入ったスチール製引き戸を設けており、ホコリ除けとしながらアパレル店舗のような雰囲気を演出しているのだそう。
コンクリートで製作したダイニングキッチンの壁は既存を残し古さと新しさを共存させた空間としているのだそうで、なんとレンジフードカバーもコンクリートで製作しているだとか。
なんとダイニングテーブルも合板とモルタルで製作しているのだそう。
洗面と一体としゆったりとしたバスルームに仕上がっています。
リビングの上にベッドルームがあります。一体化しつつも緩やかに仕切られているというところがいいですね。
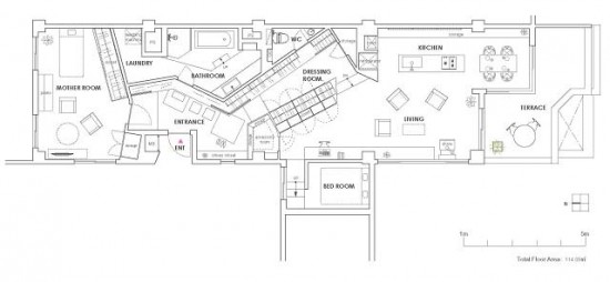
最後にこちらが見取り図です。
なかなか素敵なお部屋だと思いませんか?
ONE PROJECT編集部 オススメ記事:
・世界中の住宅建築を知り尽くした住宅建築のプロによる、世界に一つだけのこだわりの家のつくりかたを探している方はこちらの記事を合わせてお読みください:理想の家づくりに向けて
・世界中の住宅建築のデザインをお探しの方は合わせてこちらをお読みください:世界の住宅建築
▼参考:(外部サイト)
ドレスルームのあるコンクリートアパートメント – マンションリフォーム・リノベーション事例 |SUVACO(スバコ)















