正面に親子連れでにぎわう公園のゲートをのぞむ場所に建てられたまるできのこのような形をしたシンプルな佇まいの家屋が東京都杉並区にあります。
正面に大きなガラス窓があり、正方形の床面を十時に割り、四隅に小さな部屋を配置しているという斬新な設計の住宅家屋となっています。
きのこのような家「HAT 」の外観
これが「HAT」です。
駒田建築設計事務所によって設計されました。正面に見える大きな穴のような場所は駐車場として機能しています。その駐車スペースの上にある窓が大きく開かれた空間は、リビングルームとなっています。
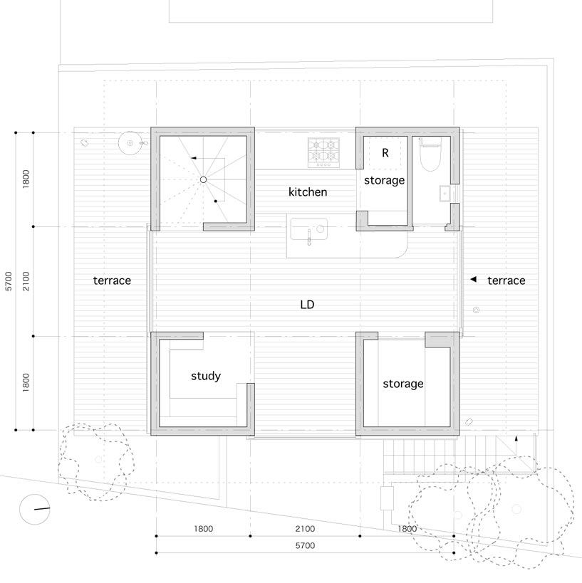
きのこのような家「HAT 」の平面見取図
こちらが駐車場の見取り図。
ちょうど乗用車一台分がすっぽりとおさまる空間となっているシンプルな設計となっています。
続いてこちらは駐車場スペースの上にあったリビングルーム。十字の空間の四隅に、右上から時計回りに納戸、トイレ、書斎スペース、それに階段が配置されているのが確認できます。
エントランスは見取り図右のテラスにあるようです。
こちらがエントランスになります。建物内の空間はどのようになっているのでしょうか。
きのこのような家「HAT 」の内観
建物内に入りました。
キッチンからの写真です。正面には書斎スペースが配置されており、正面左の大きな窓からは公園ゲートがみえます。右側の窓はテラス席ですね。
同じくキッチンからの写真。実際にキッチンで調理をしている時の目線はこんなかんじに。
続いて四隅に配置された書斎スペースです。小さなスペースではありますが、ちょっとした作業をしたい時や、ひとり部屋にこもりたい時は最適なサイズかもしれませんね。
中に入るとこんなに素敵な空間に。ちょうど良い大きさで「こもれる部屋」となっているようです。焦げ茶色のシックな壁が素敵ですね。
どうやら四隅の空間の壁はすべて焦げ茶色として統一されているようです。
再度キッチンに戻ってきました。左側がエントランス、中央が公園ゲートをのぞむ窓、そして右側がテラスとなっています。
テラス席からリビングをみてみました。大きな窓が設置されているため、空間全体が実際よりも広くみえます。
同じくテラス席からのぞんだリビングです。照明もスポットライトのように十字の空間にそれぞれ2つずつ、うまく配置されています。暖色系の色により空間を活気づけています。
十字の空間にはそれぞれ窓が設置されているようです。それにより、建物内へうまく自然光を取り入れ室内を明るい空間にしています。
続いて階段をのぼって二階へいきます。階段は螺旋階段となっているようですね。
建物2階の見取り図です。やはり同じように十字のスペースになっているようです。
階段方向から2階のホールをみたときの写真です。左奥のスペースはバスルームとなっています。ロフト部分のベッドに続くはしごが空間に彩りを与えています。
つづいてバスルーム側からホール全体を見渡してみました。2階には天窓もついている為、曇りの日でも天窓から灯りをとりこむことができるようです。ここからだと。階段もみえますね。
バルコニーのスペースです。外から見ると緑色の屋根の部分に当たります。小さな子供がひとり通ることができるくらいのスペースが確保されています。
つぎにロフトスペースです。こちらはベッドルームになっています。
正面にドラム式の洗濯機がみえます。ということは右奥の小スペースはバスルームということになりますね。それにしても斬新な設計となっていますね。
きのこのような家「HAT 」の断面図
建物正面の断面図。
中はこうなっています。窓がたくさんあり、様々な場所から自然光を取り入れる設計となっています。
あらためてみると、おとぎ話に登場しそうな外観をしていますね。十字の空間をうまく生かした建物ですね。
設計:駒田建築設計事務所 – KOMADA ARCHITECTS OFFICE(http://komada-archi.info)
ONE PROJECT編集部 オススメ記事:
・世界中の住宅建築を知り尽くした住宅建築のプロによる、世界に一つだけのこだわりの家のつくりかたを探している方はこちらの記事を合わせてお読みください。
>>>理想の家づくりに向けて
・世界中の住宅建築のデザインをお探しの方は合わせてこちらをお読みください。
>>>世界の住宅建築
▼参考:(外部リンク)
・HAT | 駒田建築設計事務所 – KOMADA ARCHITECTS OFFICE(http://komada-archi.info/archives/185)
・komada architects office: HAT house, japan












