東京の閑静な住宅街にガリバ・ハウスと呼ばれる一風変わった名前の建物があります。
ガリバ・ハウスは3階建ての建築物で、賃貸併用住宅(ひとつの建物の中にオーナー住居スペースと、入居者のスペースが併設されている建物)として建てられたこの建物の中にはオーナーの住居スペースがひとつに、入居者のスペースが3つ、さらにオフィスが併設されています。
建物内装のつくりも非常に特徴的で、特にオーナーの住居スペースには「ガリバ・ハウス」という名前が付けられているように、まるでガリバー旅行記に登場するガリバーの気持ちを味わうことができるよう、設計されています。
この建物の一体どこがガリバーなのか。そう言われる所以はどこにあるのか・・・少しずつご紹介して行きましょう。
非常にユニークで遊び心溢れる、この建築物は、be-fun design(http://www.be-fun.com)によってデザインされました。
Contents
賃貸併用住宅「gulliver house(ガリバ・ハウス)」の外観
こちらがガリバ・ハウス。確かに、建物自体の大きさは建物面積 :309.53(㎡)93.6(坪)と一般的な家屋と比べ、かなり広くつくられておりますが、その名前にみられるような外観的特徴は特に感じられません。
一体この建物の中はどのようになっているのでしょうか。そしてガリバ・ハウスと呼ばれる所以はどこにあるのでしょうか。非常に楽しみです。
まずはガリバ・ハウスがどのように部屋割りされているのかを確認したいと思います。
図を見てわかる通り、ユニット1〜3がそれぞれ賃貸住戸となっており、4〜5がオーナー住戸、そして6と7がオフィスとして使用されるように設計されています。
見取り図です。入り口はA〜Gと6つあるようです。A〜Cが賃貸住戸、D・Eがオーナー住戸、そしてF・Gがテナントオフィスとして設計されているようです。構成上、画像を収縮させておりますので詳細について確認されたい場合は画像をクリックしてください。
それではまずAの賃貸住戸からみていきましょう。
賃貸併用住宅「gulliver house(ガリバ・ハウス)」の内観
賃貸住戸A
※画像をクリックすると大きくなります。
こちらが賃貸住戸Aです。見取り図では紫のスペースです。まず部屋に入ってあらわれるのは、どうやらバスルームのようです。正面にドラム式の洗濯機がみえます。
見取り図を見る限りではこちらのバスルームはキッチンと兼用されているみたいです。写真左側にあるのがコンロというところでしょうか。
少し奥に歩いて行くと湯船がみえます。全面がガラス張りになっていて、ホテルのようにバスルームが透けてみえる形になっています。 またバスルーム横の壁にはドアが設置してあるようで、開け閉めできるようになっています。
湯船近くのバスルームにある動線は、比較的長さもあるのでこんなふうにしてゴルフのパターを楽しむことも出来るようです。白を基調とした内装が一見すると窓の少ない部屋を広くみせてくれるのもまたいいですね。
2階の見取り図です。実はこの賃貸住戸Aは2階がリビングルームとなっています。
写真右下に少し映り込んでいますが一階のドアを空けると、むかって右側にこのような階段があります。この階段がリビングに繋がっています。
階段をのぼった先にはやはり白を基調とした広い部屋があります。トップライトやハイサイドライトを巧みに利用した部屋ですね。写真左下の階段が今のぼってきた階段です。
ひとつ上の写真奥の椅子から部屋全体を眺めるとあらゆるところに自然光を取り込む為の仕掛けがされていることがよくわかります。余計なものを取り除いた、シンプルな部屋だからこそ、部屋を使用する人により、様々な楽しみ方ができそうな部屋となっています。
どうやらロフトもあるようです。
ロフトにも比較的広いスペースがとられていることがわかります。あまりみかけない、まるで別世界に来たかのような部屋のつくりですね。
何も設置していないと殺風景な部屋を、リビングとして使用すると写真のようになります。こんな部屋に住んでいたら部屋を作っていく楽しみが増えますね。
賃貸住戸B
では次に賃貸住戸Bのスペースをみていきましょう。写真でみるところのオレンジ色の部分です。
見取り図の会議室を背にして立ったときの写真です。床がコンクリートのため少し冷たさの残るスペースですね。その分、窓も大きく自然光をより多く取り込むことができる部屋となっているようです。
ちなみに壁にうっすらと映える隠し扉のようなドアの先にはキッチンとバスルームがあるようです。
賃貸住戸Bにもロフトがあります。ひとつ上の写真では奥の天井が光っているスペースがこのロフト部分にあたります。
ロフト自体は先ほどの賃貸住戸Aと似ていますね。このロフトの下にキッチンとバスルームがあります。
賃貸住戸C
つづいて賃貸住戸Cです。この部屋は、2階部分に位置しているようです。一階部分の玄関扉を空けると、正面に階段がありそれを昇るとこのお部屋があらわれます。
上の図面はその2階スペースの見取り図です。賃貸住戸Cは緑色の部分に位置しています。
子供が喜びそうな部屋だと思いませんか。ちょうどはしごになっている部分はロフトに繋がっています。ちょっとした冒険気分を味わえるような・・・そんな気持ちにさせてくれるお部屋です。
ちなみに正面の隠しとビラのような扉を開けた先には、さきほどの賃貸住戸Bと同じようにキッチン、バスルームが控えています。
非常にユニークなつくりですね。
テナントオフィスF・G
続いてテナントオフィスの部屋をみて行きます。オフィスはFとGの部分にあります赤とピンクの部分がテナントオフィスにあたるようです。
ご覧頂ければわかるように、地面より少し下に掘ってこのスペースを確保しているようです。地面を掘り下げることにより内部の天井の高さに広がりを持たせています。
小さなオフィスには最適なスペースが広がっています。仕事がはかどりそうですね。
外から見るとこのような形に。なかなかおしゃれなオフィスだと思いませんか。
テナントオフィス部分にもハイサイドライトをうまく取り込めるようになっています。
オーナー住居スペースD・E
さて、いよいよオーナー住居のスペースをみて行きましょう。オーナー住居スペースはDとEの部分ですね。
ここまでもガリバー旅行記のような冒険を楽しませる要素がありましたが、それだけではアドベンチャーハウスになってしまいます。
一体ガリバー・ハウスのガリバーたる所以はどこにあるのでしょうか。
2階の見取り図をみてみると、気になる文字が・・・よくみると「ガリバーゾーン」とかかれています。どうやらここにガリバ・ハウスの秘密があるようです。
早速いってみましょう。
ここがガリバーゾーンです。わかりますか。この不思議な空間が。実はここのスペースは、高さ1.3メートルしかありません。そう、だから「ガリバー」なのです。
大人がこの不思議な部屋に入る時、または子供達がここで遊ぶ時、自分がガリバーになったかのように大きく感じることができる唯一の部屋なのです。
天井をあえて低くすることにより、自分が大きくなったかのようにみせる空間としての工夫。非常に面白い発想だと思いませんか。
また、ガリバーゾーンの窓はスライド式になっているようです。細部にわたり工夫されていることがわかります。
写真左に見えるのがダイニングキッチンです。見比べてみると、ガリバーゾーンの、その天井の低さがはっきりとわかります。
実際に子供が入ると写真のような形になります。まるで自分が大きくなってしまったかのような不思議な気分を味わっているに違いありません。
なおガリバーゾーンは上の写真のように子供達が遊ぶ為のプレイエリアを想定してつくられたようです。
ガリバーゾーンの上にあるのは、リビングルームです。トップライトが非常に際立ち部屋全体を明るく染上げています。
リビングルームからダイニングキッチンをのぞんでみました。キッチンの上にも天窓があり、自然光を取り込むことが出来るようになっています。
実際にテーブルを並べると以上のような形に。家族団らんの風景ですね。なおキッチン横の扉は寝室へと繋がっています。
こちらが3階の見取り図です。ガリバーゾーンのちょうど上がリビングになっていることが確認できます。またリビング横の階段からは「主寝室」へとつながっていることもわかります。
こちらがリビングです。非常に明るいですね。日当り良好で気分もうきうきしてきそうなつくりの部屋となっています。昼間は、電気をつけることなくわいわい過ごすことができそうです。
実際にソファーなどの家具を設置するとこのような感じに。シンプルで非常に美しいリビングだと思いませんか。
次にリビング脇のドアからで背理することの出来るキャットウォークをみていきましょう。
右下に見えるのがリビングです。そしてリビング脇の扉をあけると階段になっており、さらにその上にいくと、上の写真左のようなロフト式のキャットウォークが待ち構えています。
ということは、賃貸の空間も含め、すべての部屋にロフトがある、ということになります。ユニークです。
それでは最後に「主寝室」です。ちょうど見取り図右側の部屋です。
こちらが主寝室です。天井が高く、圧迫感を感じさせない開放的な部屋のつくりとなっています。部屋の空気を循環させるシーリングファンも素敵ですね。
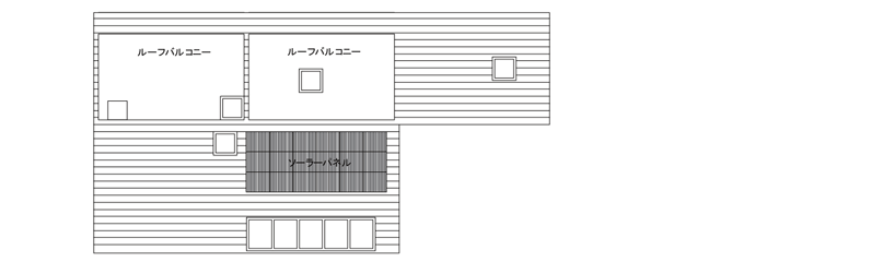
ガリバ・ハウスの断面図。オーナー住居をメインにし断面図が描かれています。個人的にはダイニングスペースの天窓の空間、ルーフバルコニーが気になります。
ルーフバルコニーも広く設計されているようです。どうやら、ソーラーパネルの設置もされているみたいですね。
ガリバ・ハウスは再生可能エネルギーも取り入れた家なんですね。
夕方のガリバハウスです。外観からはその名前から察する特徴がみられませんでしたが、内部は本当にガリバーの気分が味わえるような素敵なつくりとなっていました。
今後、ガリバハウスのような賃貸併用住宅が増えてくるような気がします。賃貸の空間を併設することにより、マイホームを建てることのコストがぐんっと下がりますし、空間としての幅も広がります。
現在シェアハウスという形での部屋以外の空間を共有する形態の賃貸形態もみられますが、その先にはガリバハウスのような、ひとつの建物内で個々の空間をそれぞれが持ちうる、一戸建ての賃貸併設の形が見え隠れするような気がします。
そういった意味でも「住まう」ちょっとその先の未来を歩いているのがガリバハウスなのかもしれません。
ONE PROJECT編集部 オススメ記事:
・世界中の住宅建築を知り尽くした住宅建築のプロによる、世界に一つだけのこだわりの家のつくりかたを探している方はこちらの記事を合わせてお読みください.。
>>>理想の家づくりに向けて
・世界中の住宅建築のデザインをお探しの方は合わせてこちらをお読みください。
>>>世界の住宅建築
▼参考:
賃貸併用住宅とはどのような住宅ですか?|賃貸経営HOME4U















