ベトナムのに外観が植物プランターでおおわれた細長い形が印象的な、建物ががあります。
幅4メートル、奥行き20メートルというこの建物は1組の夫婦と、その母が住む為の住居として設計されました。

この建物は現地の建築設計事務所VTN Architectsによってデザインされ「Stacking Green」と名付けられています。細長く奥行きがあり、建物の間から植物が顔をのぞかせている外観が印象深いですね。

建物の外観をアップすると、一種類の植物を植えている訳ではなく、多種多様な植物であることがわかります。
狭小住宅「Stacking Green」の配置図

本当に縦に細長い建物ですね。図を見る限りでは周辺に建てられた建物も細長い形をしています。
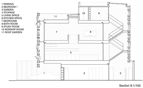
狭小住宅「Stacking Green」の断面図

正面の通りは人通りが激しいため、騒音や公害などを出来るだけカットする為にコンクリートの壁が使われました。またその壁に、隙間を空けることにより、刺さるような直射日光を防ぎ、さわやかな風と、ほどよい自然光が建物の内部に流れ込む仕組みになっています。
さらに植物を植えることにより、より暖かな自然光が葉の隙間をとおって建物にさしこみ建物全体を活気づけていることがわかります。
どうやら正面だけではなく裏側にもプランターが埋め込まれているみたいです。
狭小住宅「Stacking Green」の内観

1階部分の見取り図です。幅は4メートルなので、体感として車一台と若干スペースがあるくらいのだということがわかります。

こちらが、駐車スペースです。訪問者は必ずこのスペースから建物内部にはいることになります。

1階部分です。見取り図だと(2)ベッドルームに当たる部屋ですね。建物全体がベトナムでは幅広く使われている鉄筋コンクリート構造(RC構造)により建てられており、コンクリートがむき出しの部分もあるようです。
鉄筋コンクリートでてきた建物はひんやりとした質感が特徴的ですね。蒸し暑い気候のベトナムにはこれ以上ない素材ですね。
それでは右の階段をのぼって2階にお邪魔してみましょう。

2階はリビングルーム(5)を主としたキッチンスペース(6)が広がっており家族が生活するメインスペースとなっています。

リビング(5)から撮った写真です。 キッチン(6)の動線を確保する為に、横ではなく、壁にそうように縦に設置されています。

また吹き抜けとなった天井からはトップライトの暖かな自然光が射し込むようになっています。そのため、昼間は電気をつけなくてもご覧のようなほどよい明るさに落ち着いています。

通りの方からは植物の隙間から豊かな風と、植物の間を通り抜けた自然光が部屋中を明るく染めます。

2階から上層部へいくには吹き抜けになった階段を上がっていきます。

階段に設置されているプランターです。よくみると一段一段違う種類の植物が植えられています。

プランター壁の感覚は25センチから40センチの間で感覚をあけ、設置されており、植物と建物の良好な関係を気築いています。

続いて3階の見取り図です、3階にはベッドルームとバスルームが設置されているようです。

3階に上がってきました。まずはじめに飛び込んでくるのは大きなお風呂。バスルームです。
図面を見る限りでは、正面奥の窓側が人通りの激しい通りです。その先にはベッドルームがあるようですね。

お風呂場のすぐ隣には天窓から差し込む自然光を取り入れる塀があります。この下がちょうどリビングに設置してあったダイニングというになります。
開放的なつくりです。

その奥にはベッドルームです。 窓側に設置することで自然光を多く取り入れています。

4階の見取り図です。階段を上ったすぐ先には「Worship Room(礼拝堂)」があります。その先は屋上庭園となっています。

屋上庭園からはスカイブルーの広がった空がみえます。

全体をまとめると以上のような部屋割りになります。

断面図です。断面図によると部屋のどこにいても太陽光を取り入れることができるようですね。

「Stacking Green」の周辺図です。中央にあるのが「Stacking Green」です。

こうしてみると細長い空間で、日本でいうところの狭小住宅にあたる建物ですが、その立地を巧みに利用した、創造力に溢れた魅力的な建物ですね。建築家の知恵には本当に驚かされます。

そろそろ夜になったようです。プランターの間から光がもれています。

夜の「Stacking Green」を外から見るとこんなに美しくなります。自然に溶け込みながら住まうという見事な建築物です。
ONE PROJECT編集部 オススメ記事:
・世界中の住宅建築を知り尽くした住宅建築のプロによる、世界に一つだけのこだわりの家のつくりかたを探している方はこちらの記事を合わせてお読みください。
>>>理想の家づくりに向けて
・世界中の住宅建築のデザインをお探しの方は合わせてこちらをお読みください。
>>>世界の住宅建築
▼参考:
Stacking Green house covered in plants by Vo Trong Nghia – Dezeen