富士山を抱く静岡県御殿場市の一画の住宅街に、アミダハウスと言う住宅があります。
その名の通り、建物の内部が部屋事に区切られるのではなく、ひとまとまりとなったアミダ状になっており、極めて開放的なつくりとなっています。
なお、今回ご紹介する住宅「アミダハウス」は若い30代の夫婦のために建築家、河内一泰氏が考案した設計住宅とのこと。
アミダハウスの断面図

上にあげた写真がアミダハウスの断面図となります。
図をご覧頂くだけでも、アミダハウスが如何にアミダ状になっているのかが確認できるかと思います。

建物の高さは9.5メートル。この高さの建物の中に14ものフロアがあります。そのどれもが、閉じることなく、ゆるやかにつながっているという面白い建築物です。
アミダハウスの配置図

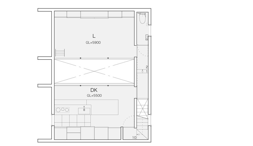
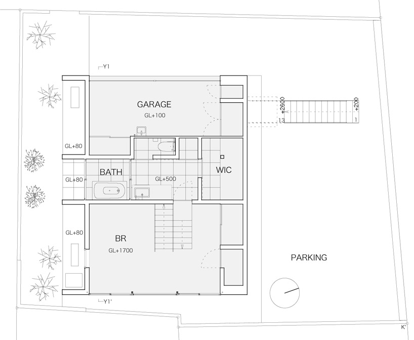
14もの部屋の中で最初に決まったのはリビングルーム。リビングから富士山をのぞめるようにと西側高さ6メートルの位置につくられたようです。続いて、客間、寝室、そして半屋外空間となるガレージが決められていったそうです。
アミダハウスの内観

アミダハウスのひとつの特徴として、玄関は2階にあります。
玄関により2つの居住空間にわけることができます。玄関より上の空間が日常的な生活空間であるリビング、客間、ダイニングキッチンなど、玄関より下の空間にプライベートな空間である寝室・浴室を配置しました。
こうした設計により、プライバシーが守られることに成功しました。

内装に関しても、工夫されています。壁の色を白で統一し、床だけに色を着けることにより、床の色が強調され、全体的にまとまりのある空間に落ち着いています。

室内からもガレージがみえます。室内の開放的なつながりが印象深いつくりとなっています。

下の階層にプライベートな空間をもってくることにより、プライバシーが守られ、お友達やお客様が訪問したときでも安心して通すことができます。

階段は本棚にもなっているようですね。またその奥は寝室であるのでベッドもみえます。

光の入り具合が絶妙です。

開放的なリビングですね。実はこのリビングから屋上テラスをみることもできます。

奥にみえるのがダイニングキッチンです。

アミダハウス最下層の中央部に位置するバスルーム(写真左)とダイニングキッチンの写真です。
アミダハウスの外観

アミダハウスの外観です。半屋外空間のガレージがみえますね。
アミダハウスの見取り図と平面図

アミダハウスの見取り図です。最下層が描かれています。


続いて2つめの階層。こちらにはリビングとダイニングキッチンがついています。

続いて3番目の階層。テラスがあります。

続いて屋上の平面図です。

アミダハウスの断面図は以上の通りです。ゲストルームが中2階に位置しているのが面白いですね。
アミダハウスの矩計図

続いてアミダハウスの詳細についてかかれた矩計図(かなばかりず)です。クリックして大きくするとみやすいと思います。いろいろな発見がある面白い矩計図です。

最後に立体的な断面図。一度みたものを立体的な断面でみることによって新たな発見があると思い改めて最後に載せることにしました。
その他、アミダハウスの詳細などについては公式ホームページをご覧ください。
公式HP:AMIDA HOUSE アミダハウス | KOCHI ARCHITECT’S STUDIO
URL:http://www.kkas.sakura.ne.jp/amida-house%E3%80%80アミダハウス/
設計事務所へは下記の公式ホームページからご連絡いただけますので、依頼されたい方は下記リンク先からお願いします。
公式HP:KOCHI ARCHITECT’S STUDIO
URL:http://www.kkas.sakura.ne.jp
ONE PROJECT編集部 オススメ記事:
・世界中の住宅建築を知り尽くした住宅建築のプロによる、世界に一つだけのこだわりの家のつくりかたを探している方はこちらの記事を合わせてお読みください。
>>>理想の家づくりに向けて
・世界中の住宅建築のデザインをお探しの方は合わせてこちらをお読みください。
>>>世界の住宅建築
▼参考:
kochi architect’s studio: amida house