千葉県勝田台に不思議な宝箱のような家があります。
名前を「勝田台のいえ」といい、1Fは店舗となっており、2階と3階にオーナーの住居を置くという店舗兼用住宅になっています。
店舗部分の1階と3階の間には空気の層があり、まるで3階部分が浮いているかのようにみえおおきな宝箱が開いているかのようにみえるのがこの家の特徴です。
千葉県勝田台の店舗兼住居「勝田台のいえ」は長山永山祐子建築設計事務所によって設計されました。
まずはこちら一階部分の間取りです。一階部分は手前に店舗、奥にクッキングルームというつくり。
宝箱のような店舗兼用住宅「勝田台のいえ」の外観
店舗の屋根はガラス貼りとなっており、店舗から住居の下部がみえる設計となっています。
ガラスばりとなっている為、夜になると隙間から宝箱が開いたように光が溢れたり、それぞれの時間で趣の異なった光の層をつくることができるように設計されています。
また、店舗の入り口付近の高さは1,8mとなっており、奥に進むにつれて壁が高くなっています。これにより建物全体に奥行きがうまれています。
1,8mという高さは一般のブロック塀の高さであり、道路との境界を無くすことによって塀に囲まれた空き地のような場所にすることに成功しています。
建物は3階でありながら、1階部分と2階部分を挟む空気の層により外からの自然光を取り入れることに成功し、店内を明るい空間に仕立て上げています。
また店舗ということもあり建物全体を空いた宝箱のように印象づけることで、「あの建物はなんなのだろう」というアイキャッチにもなっています。
ちなみにこの付近を通行する人からみると建物は上の写真のように見えます。
店舗2階部分に空気の層をもってきたことにより、3階部分の浮遊感はもちろん、プライベートな空間と仕事の空間をはっきりとさせ、店舗兼住宅でありながらオンとオフを切り離すことができるようになっています。
遠くから見ても「なんだろう」と思わせる、非常に目を引くつくりとなっていることがわかります。
こちらは2階の層部分から撮った写真。外からの自然光が店内に溢れていることがよくわかります。では店舗の内部は一体どうなっているのか。
宝箱のような店舗兼用住宅「勝田台のいえ」の内観
店内の様子です。綺麗な洋菓子がガラスケースの中に並べられています。
天井がガラスばりのため、一歩店内に入ると違う世界にきてしまったかのような気持ちを味わうことが出来ます。
左の部分が店舗部分。右の部分が住居部分の写真です。
宝箱のような店舗兼用住宅「勝田台のいえ」の住居スペース
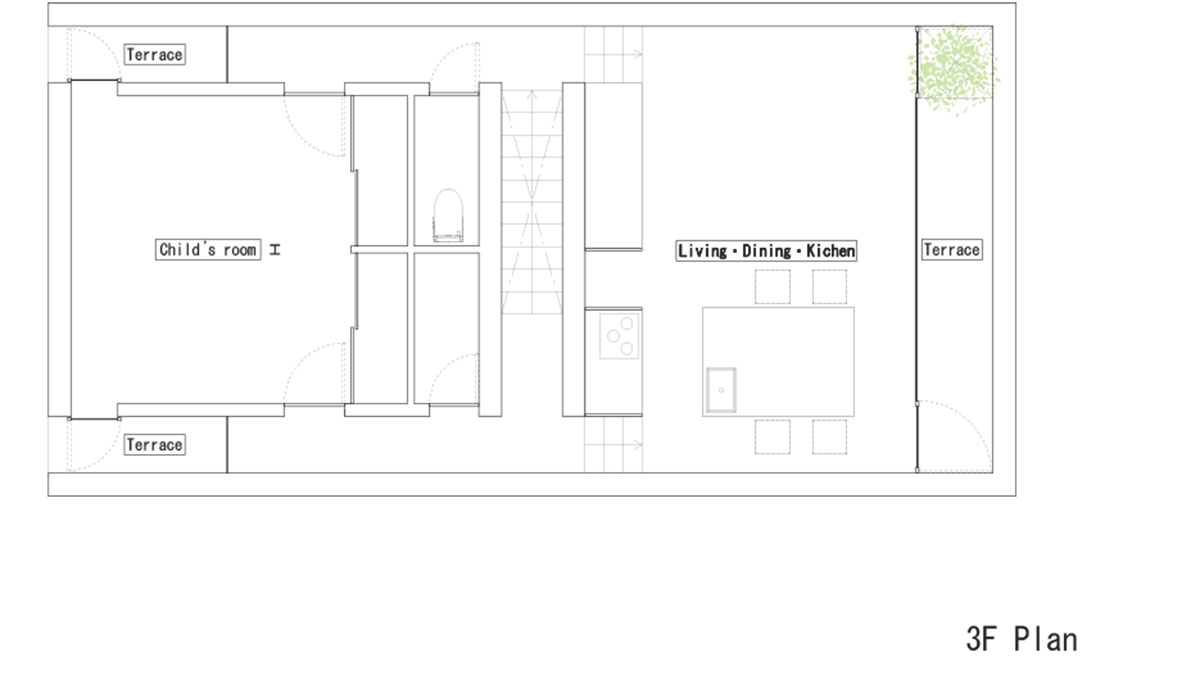
そしてこちらが3階部分の間取りです。右側にリビングダイニング。左側に子供部屋というつくり。
上の写真が子供部屋へと通じる通路部分です。店舗に階部分が空気の層になっていることや子供部屋が店舗より奥にあることにより、できるだけ店舗内に小さい子供の足音等が響くことがないように設計されています。
上の写真は3階のリビングダイニングの写真。
外からではわかりませんが、3階部分もうまい具合に自然光を取り入れることができるように設計されています。
ゆるやかな壁となっている為、街路側でありながらもカーテンをせずとも、人目を気にすることなく快適に過ごすことができます。
リビングダイニング全体をみると上の写真のようになります。
街路側からみた時の部屋の写真です。右側の通路と左側の通路はそれぞれ子供部屋へと続いています。
こちらはリビングダイニングの夜の様子。
ゆるやかな壁により夜でも人目が気になりません。
2階部分の間取りです。住居部分の2階には、バスルームなどのサニタリー部分が充実しています。あわせてベッドルーム等もこの階に設けられています。
上の写真がベッドルームの写真。
こちらがバスルームです。
こちらは住居部分の断面図です。店舗側の二階部分が空気の層になっているという不思議なつくりの建物です。
店舗から住居に移動した時に気持ちの切り替えがあるように意図的に長く変化のあるアプローチとしています。
これによりプライベートな時間と働く時間の切り替え、メリハリがうまく行えるようになっています。
永山祐子建築設計の「勝田台のいえ」は、店舗兼住宅でありながらも働く時間とプライベートの時間を切り離すことが出来るように意図的に設計されている素晴らしいデザインの建物と言えます。
ONE PROJECT編集部 オススメ記事:
・世界中の住宅建築を知り尽くした住宅建築のプロによる、世界に一つだけのこだわりの家のつくりかたを探している方はこちらの記事を合わせてお読みください。
>>>理想の家づくりに向けて
・世界中の住宅建築のデザインをお探しの方は合わせてこちらをお読みください。
>>>世界の住宅建築
▼参考:(外部サイト)
yuko nagayama stacks the katsutadai residence over a pastry shop
永山祐子建築設計 – YUKO NAGAYAMA&ASSOCIATES(http://www.yukonagayama.co.jp)










