遠藤秀平さんといえば、コルゲート鋼板を使って斬新な設計を行う建築家として有名です。兵庫県たつの市にあるコルゲート鋼板を螺旋状に展開し、内外の境界を緩やかにつなぐ建築「Springtecture 播磨(URL:http://arc-no.com/arc/hyogo/hyogo-harimatoire1.htm)」はその中でも特に氏を印象づける建築物のひとつではありますが、大阪市にも「rooftecture OT2」という同じ素材のコルゲート鋼板をつかった素敵な建物があります。
なお、コルゲート鋼板とは鉄のメッキ鋼板で、波立たせることで薄くて強い構造をつくる素材のことをいいます。
rooftecture OT2の外観

国際的な評価の高い現代建築家の一人、遠藤秀平さんが設計した大阪市にあるrooftecture OT2です。コルゲート鋼板をつかった波をうつ特徴的な外観が目を引きます。

この建築物は大阪市の街の中心部に位置し、三方向を家に囲まれている上に、人通りの多い建物正面北側しか開けれておらず、立地的にも非常に難しい位置に建てられています。

クライアントは、自然光と風を取り入れるファサード(建築物の正面)を希望しましたが、正面の通り側を完全にシャットアウトした建物になったようです。

ご覧のように建物の入り口は、右下にあり、一見した限りでは外からはわからない仕組みになっています。また夜になるとぼおっと建物全体の光が外に漏れ、よりいっそう美しい建築物として街中に溶け込むようです。

建物全体が、写真のように小さな穴が空けられた波形の鋼板で覆われています。これにより内部の状況をシャットアウトし、うまく光と風を取り入れる建物にすることに成功したようです。
クライアントの希望を別の形で提案し、うまく自然光と風を取り入れるこのアイデアは素晴らしいですね。

上の写真のように、内部からみると上手に光と風が取り込めるようになっていることを肌で感じ取ることが出来ます。

金属製の外観とはうってかわり、この入り口を境に別の素敵な暖かな世界が広がっています。
rooftecture OT2の内観

建物一階のエントランス部分の写真です。壁などは配向性ストランドボード(OSB)で覆われており、非常に暖かな雰囲気に包まれています。また金属製の外観とは違い、木材を内部に利用することで、趣のあるコントラストとして建物全体に広がっています。

先ほどの写真の左側奥を背にして、エントランス部分を見た写真です。こうしてみるとマンションののロビーのようにもみえます。

リビングルームから撮った写真です。
はじめの階段をのぼった先のフロアー(踊り場)にはお手洗いがあります。写真では左奥にある扉になります。

先ほどのお手洗い近くの手すり部分からリビング全体を撮った写真です。オレンジ色の灯りが木の質感をよりいっそう暖かなものとしています。

リビングの階段をのぼった先にはダイニングキッチンがあります。こちらで料理やお食事を・・・というわけですね。
ひとつながりの吹き抜けの空間の為、奥には先ほどのリビングもみえますね。

ダイニングキッチンから撮った写真です。左下奥がリビングルーム。写真右奥の解放されている扉はお風呂へと繋がっています。
またその横の扉はトイレになっています。

先ほどのお手洗いを背にして立ったときの写真です。奥にはダイニングキッチンもみえます。3階は子供部屋として使用するようです。

吹き抜けのため、圧迫感のない開放的な空間に仕上がっています。

子供部屋から撮った写真です。天井には天窓も仕掛けられており、立地では悪条件と思われた陽を天窓から取り入れることが出来ます。

最上階から下をみると吹き抜けの、その高さを実感することができます。
rooftecture OT2の配置図と平面図、断面図

縦に長い長方形の建築物だということがよくわかります。

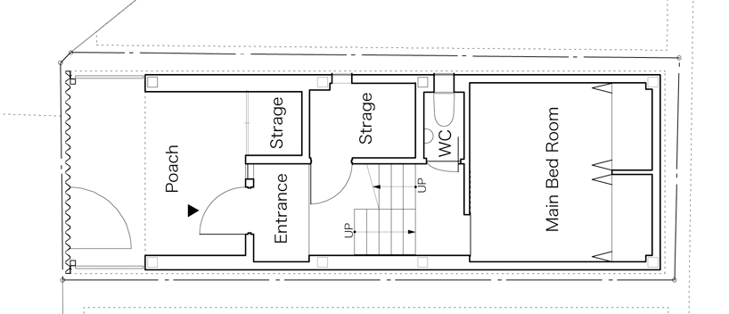
こちらは1階の見取り図です。広いポーチやベッドルームやとても印象的ですね。

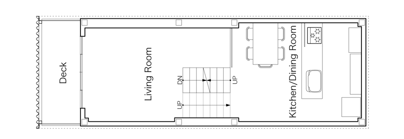
こちらは2階です。リビングルームとダイニングキッチンがあります。

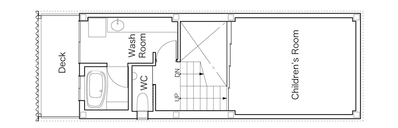
最後に三階。バスルームと子供部屋とかかれています。どの階にもデッキがあるようですね。

こちらはrooftecture OT2の断面図。それぞれのお部屋がアミダ状につらなっていることが確認できます。

夜のrooftecture OT2です。光が溢れ、この建物だけがどこか別の世界から舞い降りてきたかのような印象さえうける、素敵な建物です。
中の暖かい光が外にはみ出しているのもまたいいですね。
建築設計事務所:
・Endo Shuhei Architect Institute
URL:http://www.paramodern.com
ONE PROJECT編集部 オススメ記事:
・世界中の住宅建築を知り尽くした住宅建築のプロによる、世界に一つだけのこだわりの家のつくりかたを探している方はこちらの記事を合わせてお読みください。
>>>理想の家づくりに向けて
・世界中の住宅建築のデザインをお探しの方は合わせてこちらをお読みください。
>>>世界の住宅建築
▼参考:
shuhei endo: rooftecture OT2, japan
春、駐輪場はコルゲート鋼板で波打って: マーケティング・ブレイン